SavvyUptown2015-8Top 10 Neighborhoods in Charlotte NC in Real Estate Sales

Thinking of moving to Charlotte, NC? You may be wondering “Which neighborhoods are the top selling communities in the Charlotte area?”  Check out these top subdivisions in Charlotte NC with the highest number of homes sold in the area over the past 365 days, excluding new construction communities.

This post has been updated on January 17, 2020.

Here are the top 10 selling Charlotte NC subdivisions within the last 12 months

1. Highland Creek  (237)

This enormous subdivision northeast of center city Charlotte spans both Mecklenburg and Cabarrus counties and boasts beautiful new houses. While big, there’s plenty of community. Highland Creek is divided into smaller neighborhoods with sidewalks filled with families walking their dogs or pushing baby strollers. Children ride their bikes in cul-de-sacs. There are plenty of amenities for the entire family – tennis and basketball courts, swimming pools, parks, a golf course and a public elementary school.

  • 237 homes have sold in Highland Creek during the past 365 days with an average sold price of $297,849. There are 1.87 months of inventory in Highland Creek.

Search homes for sale in Highland Creek

6031 Castlecove Road
$475,000   Under Contract - No Show
Subdivision: Berewick

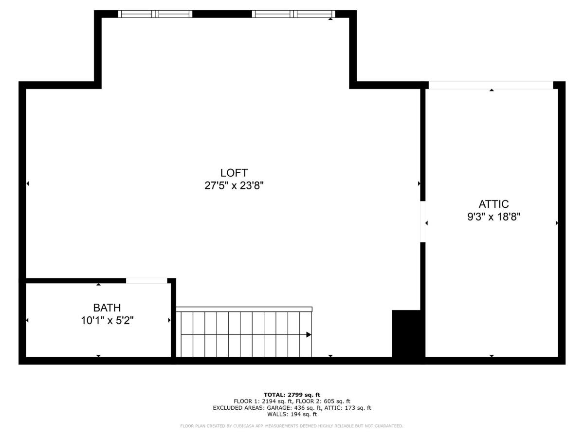
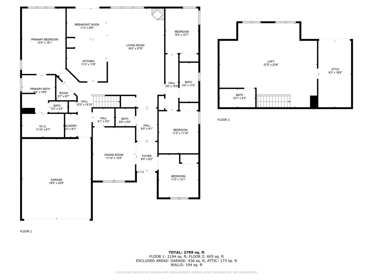
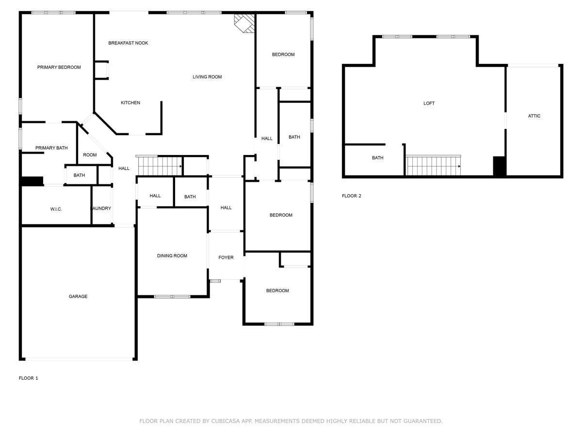
More photos to come! Welcome to this beautifully designed 2-story home offering 3 spacious bedrooms and 3.5 bathrooms. The open floor plan features a warm and inviting living room with a cozy fireplace, perfect for relaxing evenings. The kitchen includes a convenient bar area, ample pantry storage, and flows seamlessly into a formal dining room—ideal for entertaining. The primary suite boasts a double vanity and generous layout, providing comfort and style. A 2-car garage completes this thoughtfully designed home. One or more photos may be virtually staged to help showcase the home's potential. Schedule a showing today!

More Info

Back to Property List
Basic Information

MLS#: 4286394
Price: $475,000
Square Footage: 2799
Bedrooms: 3
Bathrooms: 3.1
Acreage: 0.21
Year Built: 2010
Type: Single Family Residence

Additional Photos:
Listing courtesy of: Mainstay Brokerage LLC - oxlistings@opendoor.com

Based on information submitted to the MLS GRID as of 2025-10-01 18:00:00. All data is obtained from various sources and may not have been verified by broker or MLS GRID. Supplied Open House Information is subject to change without notice. All information should be independently reviewed and verified for accuracy. Properties may or may not be listed by the office/agent presenting the information. Some IDX listings have been excluded from this website.

Contact An Agent:

VERIFICATION:What day comes BEFORE Thursday?

2. Myers Park  (197) 

Myers Park is home to Queens Road West, often cited as one of the most beautiful boulevards in the country. With its winding tree-lined streets, majestic yet charming homes and tidy pocket parks, it’s not hard to understand why. Convenient to center city Charlotte yet very walkable, this neighborhood boasts a cluster of boutique shops and world-class restaurants. Pair these features with its highly acclaimed schools and you’d be hard pressed to find a better place to call home.

  • 197 homes have sold in Myers Park during the past 365 days with an average sold price of $1,201,542. There are 3.11 months of inventory in Myers Park.

Search homes for sale in Myers Park

6031 Castlecove Road
$475,000   Under Contract - No Show
Subdivision: Berewick

More photos to come! Welcome to this beautifully designed 2-story home offering 3 spacious bedrooms and 3.5 bathrooms. The open floor plan features a warm and inviting living room with a cozy fireplace, perfect for relaxing evenings. The kitchen includes a convenient bar area, ample pantry storage, and flows seamlessly into a formal dining room—ideal for entertaining. The primary suite boasts a double vanity and generous layout, providing comfort and style. A 2-car garage completes this thoughtfully designed home. One or more photos may be virtually staged to help showcase the home's potential. Schedule a showing today!

More Info

Back to Property List
Basic Information

MLS#: 4286394
Price: $475,000
Square Footage: 2799
Bedrooms: 3
Bathrooms: 3.1
Acreage: 0.21
Year Built: 2010
Type: Single Family Residence

Additional Photos:
Listing courtesy of: Mainstay Brokerage LLC - oxlistings@opendoor.com

Based on information submitted to the MLS GRID as of 2025-10-01 18:00:00. All data is obtained from various sources and may not have been verified by broker or MLS GRID. Supplied Open House Information is subject to change without notice. All information should be independently reviewed and verified for accuracy. Properties may or may not be listed by the office/agent presenting the information. Some IDX listings have been excluded from this website.

Contact An Agent:

VERIFICATION:What is five plus three?

3. The Palisades (186) 

  • 186 homes have sold in Palisades during the past 365 days with an average sold price of $440,888. There are 4.52 months of inventory in The Palisades. 

Search homes for sale in The Palisades

6031 Castlecove Road
$475,000   Under Contract - No Show
Subdivision: Berewick

More photos to come! Welcome to this beautifully designed 2-story home offering 3 spacious bedrooms and 3.5 bathrooms. The open floor plan features a warm and inviting living room with a cozy fireplace, perfect for relaxing evenings. The kitchen includes a convenient bar area, ample pantry storage, and flows seamlessly into a formal dining room—ideal for entertaining. The primary suite boasts a double vanity and generous layout, providing comfort and style. A 2-car garage completes this thoughtfully designed home. One or more photos may be virtually staged to help showcase the home's potential. Schedule a showing today!

More Info

Back to Property List
Basic Information

MLS#: 4286394
Price: $475,000
Square Footage: 2799
Bedrooms: 3
Bathrooms: 3.1
Acreage: 0.21
Year Built: 2010
Type: Single Family Residence

Additional Photos:
Listing courtesy of: Mainstay Brokerage LLC - oxlistings@opendoor.com

Based on information submitted to the MLS GRID as of 2025-10-01 18:00:00. All data is obtained from various sources and may not have been verified by broker or MLS GRID. Supplied Open House Information is subject to change without notice. All information should be independently reviewed and verified for accuracy. Properties may or may not be listed by the office/agent presenting the information. Some IDX listings have been excluded from this website.

Contact An Agent:

VERIFICATION:What month comes BEFORE November?

4. Midwood (167) 

One of the hippest ‘hoods in Charlotte, Midwood, sits at the intersection of classic and cool. Designed around a trolley line that ran from downtown, this neighborhood began with large craftsman bungalows that lined The Plaza. After the war home styles changed to quaint cottages that filled deeper into the neighborhood. Now, new construction replicating the homes of the past blends right in.

  • 167 homes sold in Midwood during the past 365 days with an average sold price of $588,732. There are 2.59 months of inventory in Midwood.

Search homes for sale in Midwood

6031 Castlecove Road
$475,000   Under Contract - No Show
Subdivision: Berewick

More photos to come! Welcome to this beautifully designed 2-story home offering 3 spacious bedrooms and 3.5 bathrooms. The open floor plan features a warm and inviting living room with a cozy fireplace, perfect for relaxing evenings. The kitchen includes a convenient bar area, ample pantry storage, and flows seamlessly into a formal dining room—ideal for entertaining. The primary suite boasts a double vanity and generous layout, providing comfort and style. A 2-car garage completes this thoughtfully designed home. One or more photos may be virtually staged to help showcase the home's potential. Schedule a showing today!

More Info

Back to Property List
Basic Information

MLS#: 4286394
Price: $475,000
Square Footage: 2799
Bedrooms: 3
Bathrooms: 3.1
Acreage: 0.21
Year Built: 2010
Type: Single Family Residence

Additional Photos:
Listing courtesy of: Mainstay Brokerage LLC - oxlistings@opendoor.com

Based on information submitted to the MLS GRID as of 2025-10-01 18:00:00. All data is obtained from various sources and may not have been verified by broker or MLS GRID. Supplied Open House Information is subject to change without notice. All information should be independently reviewed and verified for accuracy. Properties may or may not be listed by the office/agent presenting the information. Some IDX listings have been excluded from this website.

Contact An Agent:

VERIFICATION:The NFL championship is the Super ...

5. Berewick (132) 

  • 132 homes sold in Berewick during the past 365 days with an average sold price of $746,190. There are 1.82 months of inventory in Berewick.

Search homes for sale in Berewick

6031 Castlecove Road
$475,000   Under Contract - No Show
Subdivision: Berewick

More photos to come! Welcome to this beautifully designed 2-story home offering 3 spacious bedrooms and 3.5 bathrooms. The open floor plan features a warm and inviting living room with a cozy fireplace, perfect for relaxing evenings. The kitchen includes a convenient bar area, ample pantry storage, and flows seamlessly into a formal dining room—ideal for entertaining. The primary suite boasts a double vanity and generous layout, providing comfort and style. A 2-car garage completes this thoughtfully designed home. One or more photos may be virtually staged to help showcase the home's potential. Schedule a showing today!

More Info

Back to Property List
Basic Information

MLS#: 4286394
Price: $475,000
Square Footage: 2799
Bedrooms: 3
Bathrooms: 3.1
Acreage: 0.21
Year Built: 2010
Type: Single Family Residence

Additional Photos:
Listing courtesy of: Mainstay Brokerage LLC - oxlistings@opendoor.com

Based on information submitted to the MLS GRID as of 2025-10-01 18:00:00. All data is obtained from various sources and may not have been verified by broker or MLS GRID. Supplied Open House Information is subject to change without notice. All information should be independently reviewed and verified for accuracy. Properties may or may not be listed by the office/agent presenting the information. Some IDX listings have been excluded from this website.

Contact An Agent:

VERIFICATION:What month comes AFTER June?

6. Cotswold (131) 

If you are looking for that neighborhood close to Charlotte’s downtown with a warm and friendly feel, then look no further than Cotswold. Bordering on some of Charlotte’s most exclusive neighborhoods, such as Eastover and Foxcroft, Cotswold offers an amazing location that is only moments away from the center city.

  • 131 homes sold in Cotswold during the past 365 days with an average sold price of $755,397. There are 2.56 months of inventory in Cotswold.

Search homes for sale in Cotswold

6031 Castlecove Road
$475,000   Under Contract - No Show
Subdivision: Berewick

More photos to come! Welcome to this beautifully designed 2-story home offering 3 spacious bedrooms and 3.5 bathrooms. The open floor plan features a warm and inviting living room with a cozy fireplace, perfect for relaxing evenings. The kitchen includes a convenient bar area, ample pantry storage, and flows seamlessly into a formal dining room—ideal for entertaining. The primary suite boasts a double vanity and generous layout, providing comfort and style. A 2-car garage completes this thoughtfully designed home. One or more photos may be virtually staged to help showcase the home's potential. Schedule a showing today!

More Info

Back to Property List
Basic Information

MLS#: 4286394
Price: $475,000
Square Footage: 2799
Bedrooms: 3
Bathrooms: 3.1
Acreage: 0.21
Year Built: 2010
Type: Single Family Residence

Additional Photos:
Listing courtesy of: Mainstay Brokerage LLC - oxlistings@opendoor.com

Based on information submitted to the MLS GRID as of 2025-10-01 18:00:00. All data is obtained from various sources and may not have been verified by broker or MLS GRID. Supplied Open House Information is subject to change without notice. All information should be independently reviewed and verified for accuracy. Properties may or may not be listed by the office/agent presenting the information. Some IDX listings have been excluded from this website.

Contact An Agent:

VERIFICATION:What is seven minus two?

7. Madison Park (121) 

With winding tree-lined streets and easy access to uptown, the SouthPark Mall, major highways and the airport, Madison Park is great for families who want a quiet, but well connected neighborhood. Charlotte’s Lynx Blue Line runs up South Boulevard with 15 stops for easy access — Uptown is just minutes away. On the other end of the neighborhood Park Road offers a bevy of shopping and recreational opportunities, making Madison Park a neighborhood that has it all.

  • 121 homes have sold in Madison Park during the past 365 days with an average sold price of $362,577. There are 2.18 months of inventory in Madison Park.

Search homes for sale in Madison Park

6031 Castlecove Road
$475,000   Under Contract - No Show
Subdivision: Berewick

More photos to come! Welcome to this beautifully designed 2-story home offering 3 spacious bedrooms and 3.5 bathrooms. The open floor plan features a warm and inviting living room with a cozy fireplace, perfect for relaxing evenings. The kitchen includes a convenient bar area, ample pantry storage, and flows seamlessly into a formal dining room—ideal for entertaining. The primary suite boasts a double vanity and generous layout, providing comfort and style. A 2-car garage completes this thoughtfully designed home. One or more photos may be virtually staged to help showcase the home's potential. Schedule a showing today!

More Info

Back to Property List
Basic Information

MLS#: 4286394
Price: $475,000
Square Footage: 2799
Bedrooms: 3
Bathrooms: 3.1
Acreage: 0.21
Year Built: 2010
Type: Single Family Residence

Additional Photos:
Listing courtesy of: Mainstay Brokerage LLC - oxlistings@opendoor.com

Based on information submitted to the MLS GRID as of 2025-10-01 18:00:00. All data is obtained from various sources and may not have been verified by broker or MLS GRID. Supplied Open House Information is subject to change without notice. All information should be independently reviewed and verified for accuracy. Properties may or may not be listed by the office/agent presenting the information. Some IDX listings have been excluded from this website.

Contact An Agent:

VERIFICATION:What is seven minus two?

8. Stonehaven (86) 

  • 86 homes sold in Stonehaven during the past 365 days with an average sold price of $360,726. There are 1.53 months of inventory in Stonehaven.

Search homes for sale in Stonehaven

6031 Castlecove Road
$475,000   Under Contract - No Show
Subdivision: Berewick

More photos to come! Welcome to this beautifully designed 2-story home offering 3 spacious bedrooms and 3.5 bathrooms. The open floor plan features a warm and inviting living room with a cozy fireplace, perfect for relaxing evenings. The kitchen includes a convenient bar area, ample pantry storage, and flows seamlessly into a formal dining room—ideal for entertaining. The primary suite boasts a double vanity and generous layout, providing comfort and style. A 2-car garage completes this thoughtfully designed home. One or more photos may be virtually staged to help showcase the home's potential. Schedule a showing today!

More Info

Back to Property List
Basic Information

MLS#: 4286394
Price: $475,000
Square Footage: 2799
Bedrooms: 3
Bathrooms: 3.1
Acreage: 0.21
Year Built: 2010
Type: Single Family Residence

Additional Photos:
Listing courtesy of: Mainstay Brokerage LLC - oxlistings@opendoor.com

Based on information submitted to the MLS GRID as of 2025-10-01 18:00:00. All data is obtained from various sources and may not have been verified by broker or MLS GRID. Supplied Open House Information is subject to change without notice. All information should be independently reviewed and verified for accuracy. Properties may or may not be listed by the office/agent presenting the information. Some IDX listings have been excluded from this website.

Contact An Agent:

VERIFICATION:What color is grass?

9. Dilworth (78)

Grand front-porch architecture and outstanding walkability mark Dilworth as one of Charlotte’s most sought-after neighborhoods. The wide tree-lined streets and neighborly attitude add to the charm. Residents are seen waving from porches, strolling with dogs and kids, and walking to the restaurants and shops on East Boulevard and the nightlife in the recently revitalized SouthEnd District.

  • 78 homes sold in Dilworth during the past 365 days with an average sold price of $867,554. There are 2.46 months of inventory in Dilworth.

Search homes for sale in Dilworth

6031 Castlecove Road
$475,000   Under Contract - No Show
Subdivision: Berewick

More photos to come! Welcome to this beautifully designed 2-story home offering 3 spacious bedrooms and 3.5 bathrooms. The open floor plan features a warm and inviting living room with a cozy fireplace, perfect for relaxing evenings. The kitchen includes a convenient bar area, ample pantry storage, and flows seamlessly into a formal dining room—ideal for entertaining. The primary suite boasts a double vanity and generous layout, providing comfort and style. A 2-car garage completes this thoughtfully designed home. One or more photos may be virtually staged to help showcase the home's potential. Schedule a showing today!

More Info

Back to Property List
Basic Information

MLS#: 4286394
Price: $475,000
Square Footage: 2799
Bedrooms: 3
Bathrooms: 3.1
Acreage: 0.21
Year Built: 2010
Type: Single Family Residence

Additional Photos:
Listing courtesy of: Mainstay Brokerage LLC - oxlistings@opendoor.com

Based on information submitted to the MLS GRID as of 2025-10-01 18:00:00. All data is obtained from various sources and may not have been verified by broker or MLS GRID. Supplied Open House Information is subject to change without notice. All information should be independently reviewed and verified for accuracy. Properties may or may not be listed by the office/agent presenting the information. Some IDX listings have been excluded from this website.

Contact An Agent:

VERIFICATION:What day comes AFTER Monday?

10. Providence Plantation (77) 

Enter any one of the five landscaped entryways into Providence Plantation and you’re instantly transported from the bustle of trendy South Charlotte into a comfortable, exurban forest where large lots and long driveways promise a degree of privacy while still connecting with neighbors.  Developed in the early 1980s the neighborhood’s more recent construction favors upscale homes with greater square footage on smaller lots.

  • 77 homes sold in Providence Plantation during the past 365 days with an average sold price of $526,311. There are 1.87 months of inventory in Providence Plantation.

Search homes for sale in Providence Plantation

6031 Castlecove Road
$475,000   Under Contract - No Show
Subdivision: Berewick

More photos to come! Welcome to this beautifully designed 2-story home offering 3 spacious bedrooms and 3.5 bathrooms. The open floor plan features a warm and inviting living room with a cozy fireplace, perfect for relaxing evenings. The kitchen includes a convenient bar area, ample pantry storage, and flows seamlessly into a formal dining room—ideal for entertaining. The primary suite boasts a double vanity and generous layout, providing comfort and style. A 2-car garage completes this thoughtfully designed home. One or more photos may be virtually staged to help showcase the home's potential. Schedule a showing today!

More Info

Back to Property List
Basic Information

MLS#: 4286394
Price: $475,000
Square Footage: 2799
Bedrooms: 3
Bathrooms: 3.1
Acreage: 0.21
Year Built: 2010
Type: Single Family Residence

Additional Photos:
Listing courtesy of: Mainstay Brokerage LLC - oxlistings@opendoor.com

Based on information submitted to the MLS GRID as of 2025-10-01 18:00:00. All data is obtained from various sources and may not have been verified by broker or MLS GRID. Supplied Open House Information is subject to change without notice. All information should be independently reviewed and verified for accuracy. Properties may or may not be listed by the office/agent presenting the information. Some IDX listings have been excluded from this website.

Contact An Agent:

VERIFICATION:What is five plus three?

Other top selling communities include Villa Heights (68 sales), Windsor Park (62 sales), Ballantyne Country Club (61) and The Arts District / NoDa (57).

If you are thinking about buying a Charlotte home for sale and would like more information on the home buying process or on one of Charlotte NC’s top neighborhoods, email us at getsavvy@savvyandcompany.com for more information.