Country Club Heights homes for sale
Country Club Heights is quickly becoming one of Charlotte’s hottest in-town neighborhoods. With close proximity to Uptown, Midwood and The Arts District, at a fraction of the cost, this cozy neighborhood is on the radar. Built primarily in the 50′s and 60′s, Country Club Heights is home to mid-century ranches, split levels and is sprinkled with a touch of mid-century modern. The neighborhood ranges from people who have lived and loved it for years and is increasingly being called home by new homeowners, renovating these classics with a modern touch.
Shamrock Park is in the heart of Country Club Heights tucked in between Jeff and Airlie Streets. The Community Garden is where friends and family gather to grow fellowship and vegetables
Country Club Heights is surrounded by some of Charlotte’s best known little dining secrets, Lang Van Vietnamese and Three Amigos!
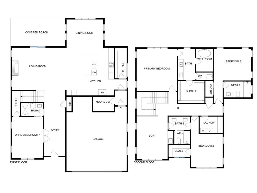
Experience elevated living in this thoughtfully crafted new home, ideally located in the heart of Country Club Heights. This brand-new 4-bedroom, 3-bath home offers over 3,300 square feet of beautifully designed space tailored for today’s lifestyle. Every element has been carefully curated—from wide-plank flooring and designer lighting to a cohesive finishes package that balances timeless elegance with current design trends. At the center of the home, the chef’s kitchen stuns with custom cabinetry, sleek quartz countertops, a striking backsplash, and a central island that invites gathering. The walk-in pantry and scullery add both form and function—enhancing everyday efficiency without sacrificing style. The main level includes a private guest suite, offering comfort and flexibility. Upstairs, the primary suite is a true retreat, complete with a spa-inspired bath featuring a soaking tub, walk-in shower, and a custom-designed closet. Two additional bedrooms, a stylish guest bath, and a versatile bonus room offer room to grow, create, or unwind. Step outside to a covered outdoor living space that opens to a private, fenced backyard—perfect for entertaining or quiet evenings at home. Just minutes from Uptown, NoDa, and Plaza Midwood, this home pairs smart design with modern style in one of Charlotte’s most vibrant and walkable neighborhoods.
| MLS#: | 4312057 |
| Price: | $1,150,000 |
| Square Footage: | 3369 |
| Bedrooms: | 4 |
| Bathrooms: | 4 |
| Acreage: | 0.33 |
| Year Built: | 2026 |
| Type: | Single Family Residence |
Based on information submitted to the MLS GRID as of 2026-02-08 06:00:00. All data is obtained from various sources and may not have been verified by broker or MLS GRID. Supplied Open House Information is subject to change without notice. All information should be independently reviewed and verified for accuracy. Properties may or may not be listed by the office/agent presenting the information. Some IDX listings have been excluded from this website.
Contact An Agent:
















