Chantilly Homes for Sale
Charm in the Queen City.
Nestled between Elizabeth and Plaza Midwood, Chantilly is a post-war neighborhood with beautiful oak-lined streets ideal for people who want a historic home in an established area. This in-town Charlotte location allows residents to have access to all the bells and whistles of neighboring areas while being able to come home to a peaceful retreat.
Insider Tips: This area is perfect for walking. You can easily walk to shops, bars, and restaurants in Elizabeth and Plaza Midwood. Park your car at home and bike, walk, run or get a scooter.
Links
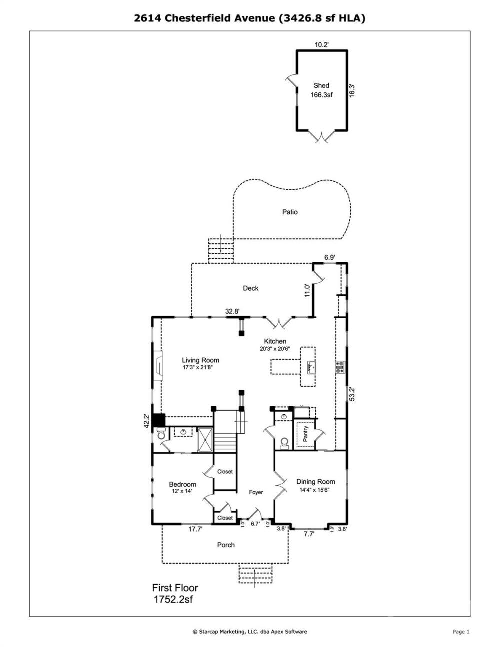
Nestled on a no-outlet street in desirable Chantilly, this modern and stylish craftsman-style home awaits. Built in 2018 by Carolina Craftsman Builders, this 5-bedroom, 3.5-bathroom home is designed with hosting in mind. The chic formal dining room features french doors, wainscoting, and connects to the kitchen via a butler’s pantry/bar. The timeless kitchen has classic white cabinetry, counter-to-ceiling backsplash tile, a natural wood island with seating, and a walk-in pantry. The open-concept living room boasts decorative ceiling moldings, built-in bookcases, and a cozy gas fireplace with a beautiful mosaic. The convenient, main-level bedroom and full bathroom are perfect for guests. A spacious loft at the top of the stairs creates endless flexibility. The inviting primary suite on the second level is a true retreat, thanks to a walk-in closet and a tranquil en-suite bathroom with a double vanity, clawfoot tub, and a separate shower. Secondary bedrooms are well-appointed and share a full bathroom with a double vanity and shower/tub combination. The fifth bedroom also makes for a wonderful dedicated office on the second level. Thoughtful architectural details, elegant finishes, and hardwood floors add to the home’s appeal. Great storage for easy organization throughout, including a main-level mudroom with a built-in workspace/cubbies and an upstairs laundry room. A fenced backyard is a private paradise with a covered deck, large patio, and mature landscaping. Walking distance to the best of Plaza Midwood, Elizabeth, and the Chantilly Ecological Sanctuary and Park!
| MLS#: | 4305370 |
| Price: | $1,490,000 |
| Square Footage: | 3427 |
| Bedrooms: | 5 |
| Bathrooms: | 3.1 |
| Acreage: | 0.19 |
| Year Built: | 2018 |
| Type: | Single Family Residence |
Based on information submitted to the MLS GRID as of 2026-03-25 12:00:00. All data is obtained from various sources and may not have been verified by broker or MLS GRID. Supplied Open House Information is subject to change without notice. All information should be independently reviewed and verified for accuracy. Properties may or may not be listed by the office/agent presenting the information. Some IDX listings have been excluded from this website.
Contact An Agent:

















































