Search Bungalows for Sale in Charlotte
You can find bungalows for sale in some of Charlotte’s most popular neighborhoods: Chantilly, Dilworth, Elizabeth, Plaza Midwood, The Arts District (also know as NoDa), Wesley Heights and Wilmore. These hip neighborhoods offer oak-lined streets filled with smiling, friendly neighbors and charming homes with lots of curb appeal.
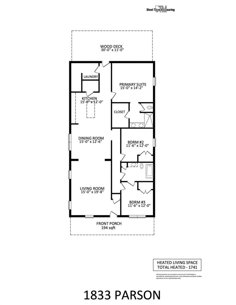
Picturesque 3BR/2BA bungalow living in the vibrant Villa Heights community. Delivering impeccable curbside appeal, this lovely haven is move-in ready and comes with the bonus of no HOA fees. The inviting front porch welcomes you in. Ideal for both entertaining or relaxing, enjoy the open floor plan designed for modern one-level living. The generous living and dining area is highlighted by high ceilings, oversized windows, and rich hardwood floors. The stylish island kitchen boasts ample gray shaker cabinets, a large walk-in pantry, and stainless steel appliances. The split bedroom floorplan offers both family access and privacy, with the primary suite overlooking the serene back yard. Rounding out this storybook home, step outside to enjoy your private backyard retreat. The landscaped fenced-in backyard with a large deck, brick patio and shed provides a lovely space for summer outdoor gatherings. Additional updates that add value to this home include newer solar panels, and maintenance management. Your forever home awaits.
| MLS#: | 4336730 |
| Price: | $785,000 |
| Square Footage: | 1741 |
| Bedrooms: | 3 |
| Bathrooms: | 2 |
| Acreage: | 0.17 |
| Year Built: | 2016 |
| Type: | Single Family Residence |
Based on information submitted to the MLS GRID as of 2026-02-08 06:00:00. All data is obtained from various sources and may not have been verified by broker or MLS GRID. Supplied Open House Information is subject to change without notice. All information should be independently reviewed and verified for accuracy. Properties may or may not be listed by the office/agent presenting the information. Some IDX listings have been excluded from this website.
Contact An Agent:
































